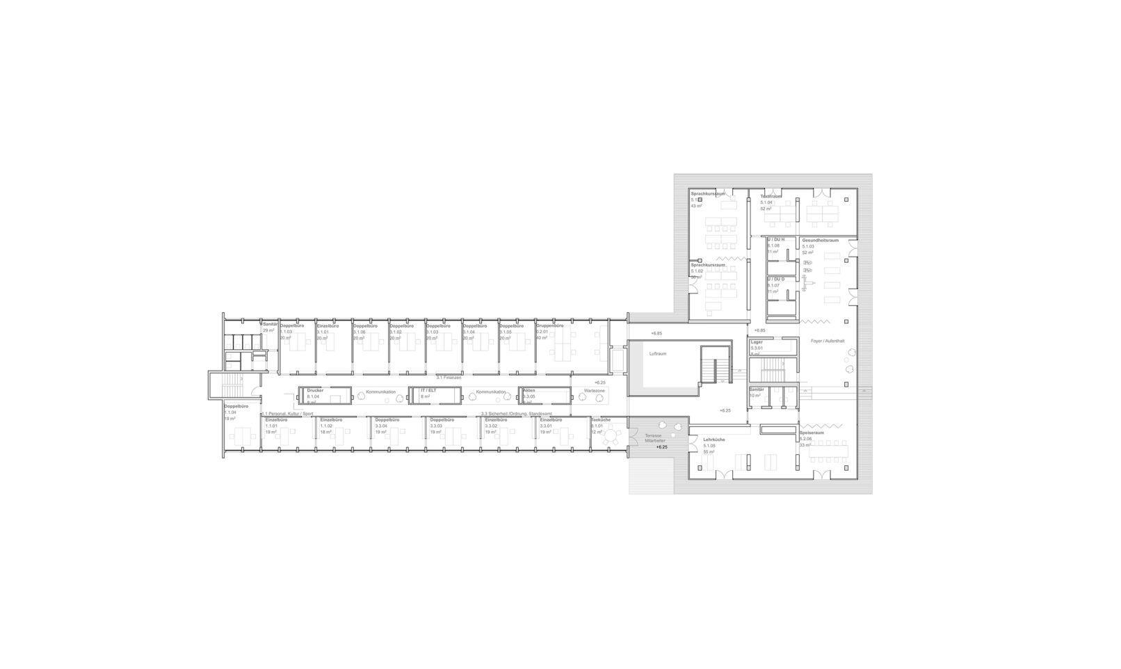
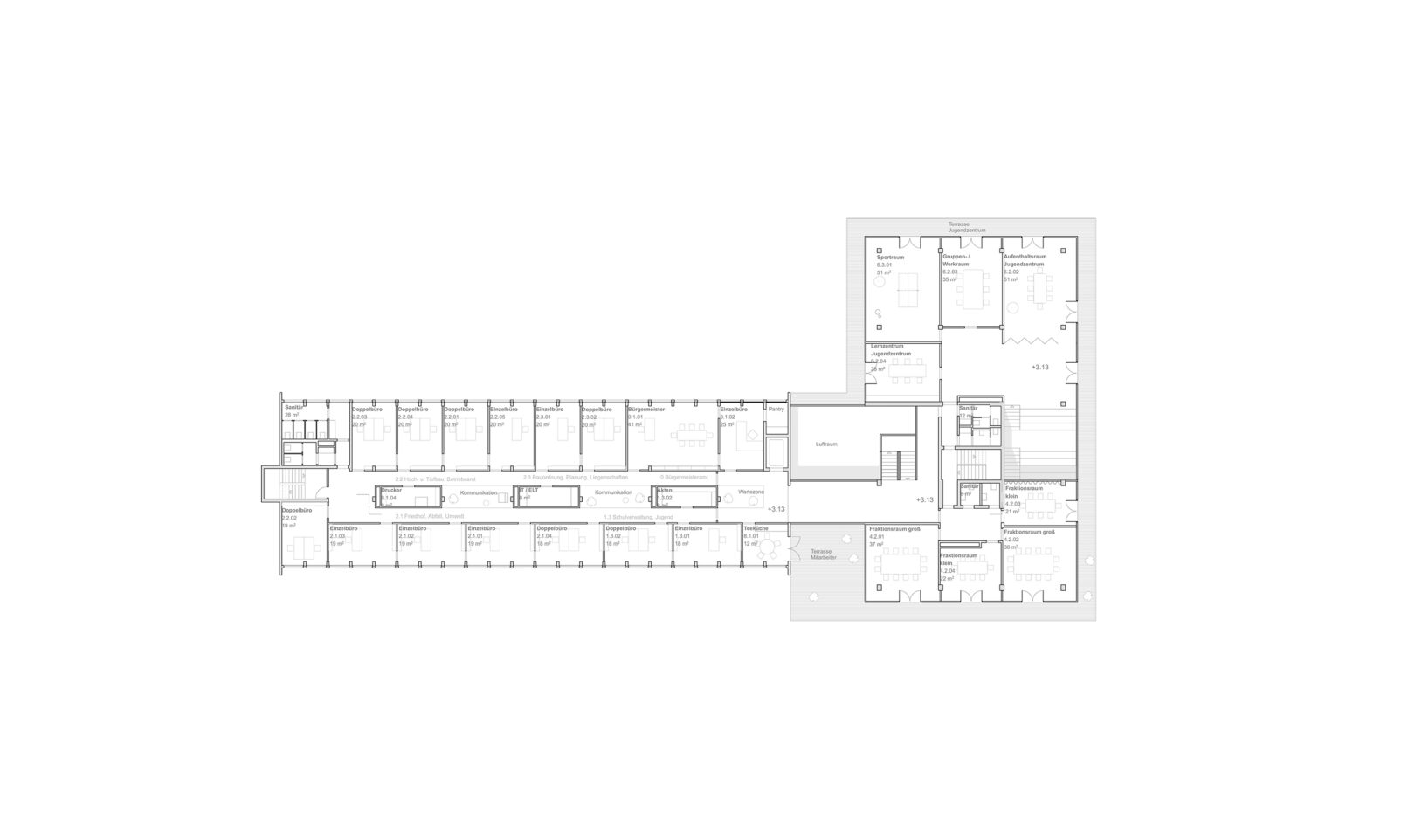
Bürgerzentrum Aldenhoven

Nichtoffener Wettbewerb 2025, 1. Preis

 

mit

glaßer und dagenbach landschaftsarchitekten

WINTER Beratende Ingenieure für Gebäudetechnik

EiSat GmbH, Engineered Structures

Müller-BBM Building Solutions GmbH

Sebastian Kloß Brandschutz